





| 広さ(坪数) | 備品(無料) | 収容人数 | ||
|---|---|---|---|---|
| 机 | イス | 教室形式 | 会議形式 | |
| 160m²(48坪) | 30台 | 60脚 | 60名 | 32名 |
| 午前料金 | 午後料金 | 全日利用 | 展示会利用 | 時間外延長料金 1時間につき |
休日割増料金(土・日・祝祭日)1日につき | |
|---|---|---|---|---|---|---|
| (9時~12時) | (13時~18時) | 基本時間(9時~18時) | 会議・講習会等 | 展示会利用 | ||
| 33,000円 | 44,000円 | 55,000円 | 110,000円 | 利用料金の1割 | 4,400円 | 11,000円 |
| 机 | イス | ホワイトボード スクリーン (可動式) |
演台 | 花台 | 傘立て | ハンガーラック (ハンガー付き) |
インターネット |
|---|---|---|---|---|---|---|---|
| 30台 | 60脚 | ||||||
| 机(受付用) | イス(受付用) | 各1台 | 1台 | 1台 | 1台 | 2台/50本 (ハンガー付き) |
有線/無線 |
| 1台 | 2脚 |
| 1日 | 2日~3日 | 4日~5日 | |
|---|---|---|---|
| 机(1台) | 770円 | 924円 | 1,078円 |
| イス(1脚) | 330円 | 396円 | 462円 |
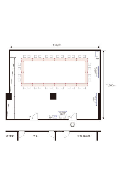
| 会場名 | 3F 中ホール |
|---|---|
| 面積(坪数) | 160m²(48坪) |
| 収容人数 | 2人掛け 60名 |
| 常設備品 | |
|
|
| 会場名 | 3F 中ホール |
|---|---|
| 面積(坪数) | 160m²(48坪) |
| 収容人数 | 2人掛け 32名 |
| 常設備品 | |
|
|
| 会場名 | 3F 中ホール |
|---|---|
| 面積(坪数) | 160m²(48坪) |
| 収容人数 | 2人掛け 28名 |
| 常設備品 | |
|
|
| 会場名 | 3F 中ホール |
|---|---|
| 面積(坪数) | 160m²(48坪) |
| 収容人数 | 2人掛け 58名 |
| 常設備品 | |
|
|
| 会場名 | 3F 中ホール |
|---|---|
| 面積(坪数) | 160m²(48坪) |
| タタミ枚数 | 約80枚 |
| 常設備品 | |
|
|
| 常設備品(申し出がある場合) | |
|
|

※注 通路は共有スペースになっております。各会場の受付設置は会場内にてお願いします。